Twin apartments

Hiện nay chung cư không còn là một loại hình nhà ở xa lạ, cũng như việc định cư hay cho thuê các căn hộ đang ngày càng trở nên phổ biến. Hai chị em ruột – cư dân của 2 căn hộ “song sinh” cũng như vậy, họ mong muốn 2 căn hộ này đều được thiết kế để đáp ứng nhu cầu sinh sống và nếu cần thì cho thuê. Vì vậy bài toán đặt ra cho thiết kế là phải tìm được giải pháp không gian linh hoạt nhất, để có thể phù hợp với nhiều đối tượng gia đình đến đây sinh sống.

Với đầu bài như vậy, nằm trong bối cảnh của tòa nhà Golden Land (Hà Nội), đây là 2 căn hộ liền kề có hiện trạng tương tự nhau và có nhiều điểm bất cập (các phòng bị chia cắt rời rạc, cảm giác chật chội; không gian không mạch lạc, buồn tẻ,…).

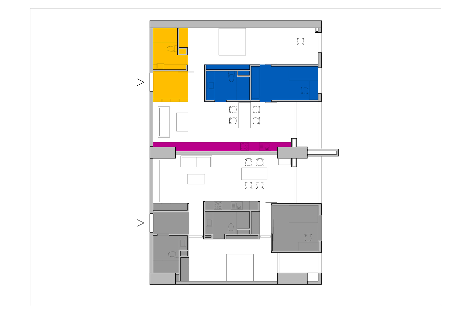
Để khắc phục những bất cập của hiện trạng, không gian của hai căn hộ được quy hoạch lại một cách khoa học và hợp lý. Chúng tôi tạo ra ba khối “công năng” để cấu trúc toàn bộ không gian từng căn hộ. Các khối này có thể là các không gian sảnh, phòng vệ sinh, phòng đa năng (ngủ trẻ, làm việc…) được tích hợp với các hệ tủ (tủ quần áo, tủ bếp, giá sách…), hay cũng có thể chính các tủ này tổ hợp với nhau. Sự sắp xếp các khối này định hình nên các không gian xuyên suốt liên thông với nhau (phòng khách, phòng ăn, phòng ngủ chính,…), tạo cảm giác như căn nhà được mở rộng, thoáng đãng và ngập tràn ánh sáng. Sự mở rộng, liên thông này sẽ gợi mở sự tương tác và chia sẻ gần gũi giữa bố mẹ với con cái. Việc kết nối hay ngăn chia giữa các không gian cũng trở nên linh hoạt hơn, khi đan xen giữa 3 khối “công năng” đó là sự sắp đặt hàng loạt các cánh cửa, những yếu tố đóng – mở linh động.

Đối nghịch với 3 khối “công năng” mang tính đơn giản, hiện đại đã đề cập đến, các món đồ rời được lựa chọn lại mang tính thủ công, truyền thống. Chúng là series các món đồ đạc làm bằng gỗ tự nhiên (bàn, ghế, giường,…) với các chi tiết phức tạp tinh tế. Sự bố cục này tạo nên một cuộc đối thoại thú vị giữa hiện đại với truyền thống.

Xuất phát từ một nguyên lý chung về không gian như vậy, tuy nhiên ở cặp căn hộ “song sinh”, mỗi căn hộ lại mang một cá tính, một biểu hiện riêng biệt, phản ánh cá tính riêng của hai chị em, mà ở đây màu sắc là điểm hiện hữu rõ nét nhất. Một căn hộ chỉ sử dụng màu trắng bóng một cách đồng nhất trên toàn bộ các bề mặt: tường, trần, tủ, cánh cửa,… Màu sơn này có thể tạo nên chiều sâu khi có sự phản chiếu của ánh sáng. Căn hộ còn lại có xu hướng biểu hiện nổi bật hơn, khi 3 khối “công năng” được sơn bởi 3 màu khác nhau: xanh, vàng, tím. Mỗi điểm nhìn trong căn hộ là sự tổ hợp khéo léo giữa ba mầu này, cùng với sự tương quan ấn tượng với ánh sáng và không gian.

Căn hộ “song sinh”, như tên gọi của chính nó, đều xuất phát từ một nguyên lý thiết kế chung, nhưng mỗi cá thể lại mang một cá tính, một biểu hiện riêng biệt. Các hệ tủ ở đây mang một giá trị mới, chúng không chỉ có chức năng sử dụng mà còn kiến tạo không gian.

CLIENT

Private

Location

Thanh Xuan, Hanoi, Vietnam

Year

2015

Status

Completed

Program

Residence

TEAM

Collaborators