Organic Café

(English below)

Organic Café – Kiến tạo những khoảng trống đô thị

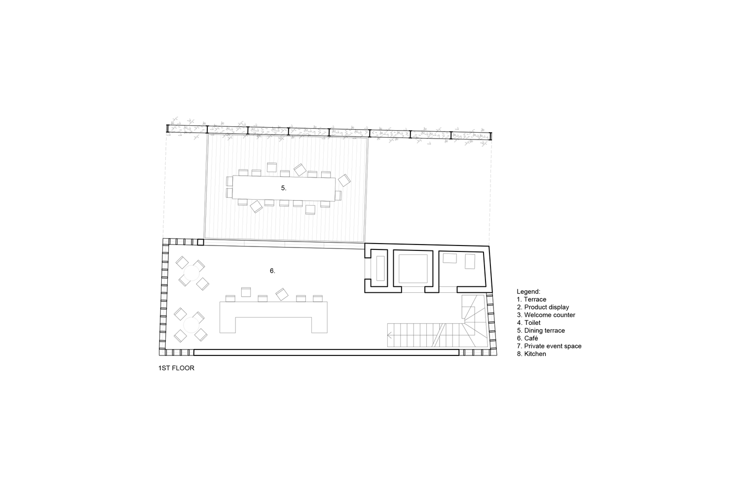
Nằm trên phố Lạc Long Quân, quận Tây Hồ – một vị trí khá xa so với trung tâm Hà Nội, công trình The 5th Flavor được dự định xây dựng trên 2 lô đất cạnh nhau, một lô có hiện trạng là ngôi nhà ống 6 tầng kết cấu bê tông cốt thép, một lô chưa xây dựng. Chủ nhà hàng đang kinh doanh sữa yến mạch Organic tại ngôi nhà cũ. Chị mong muốn mở rộng kinh doanh và thử sức với một nhà hàng về các món ăn được chế biến từ nguồn thực phẩm Organic. Cùng với đó là các không gian cà phê, lounge, bar và không gian đa năng để tổ chức các sự kiện, lớp học nấu ăn… Bên cạnh chất lượng các món ăn của nhà hàng, không gian kiến trúc được chủ đầu tư rất coi trọng.

Thách thức đặt ra đối với chúng tôi là vị trí công trình không có nhiều thuận lợi cho việc kinh doanh nhà hàng, vừa xa trung tâm vừa xen kẽ trong khu vực nhà phố liền kề, xây dựng đặc kín thiếu thẩm mỹ. Vậy làm thế nào để tạo ra một điểm đến thu hút được khách hàng? Chúng tôi xác định sẽ phải tạo ra những ưu điểm nằm trong chính nội tại của công trình. Nó không chỉ có sự độc đáo, lôi cuốn về mặt hình thức mà còn phải có những giá trị về môi trường như chính sản phẩm được tiêu thụ nơi đây. Trước tiên đó là việc hạn chế đập phá, và ngay cả khi xây mới cũng phải được tính toán cho tổn hao ít năng lượng nhất. Ngôi nhà cũ được giữ lại tối đa, tu sửa để phù hợp với công năng mới. Còn lô đất mới bên cạnh được chúng tôi biến thành một “khu vườn thẳng đứng” với đầy đủ ánh sáng và thoáng đãng tự nhiên. Chính ý tưởng về cũ và mới được chúng tôi khai thác để tạo ra sự tương phản thú vị của công trình.

Về mặt hình thức, phần nhà cũ khai thác yếu tố “đặc”, được bao bọc một loại gạch thông gió bằng vật liệu xi măng đúc khuôn – một hình thức truyền thống được chúng tôi tái tạo để biểu hiện một hình ảnh đương đại, cá tính của mặt đứng. Ngoài yếu tố thẩm mỹ, nó còn là lớp che nắng chiếu trực tiếp vào không gian nội thất có mặt chính hướng Tây. Phần mới xây là khu vườn “rỗng” thông suốt, nhẹ nhàng. Nó được dựng trên một hệ khung sắt tiền chế với kinh phí tối thiểu. Ngoài hệ thống cây cối, ba khối công năng và những khoảng sân vườn được “treo” lơ lửng ở đây. Hai phần nhà liên hệ khéo léo với nhau qua các công năng trong và ngoài từ hai phía. Khu vườn này như một lá phổi lớn, không những mang lại cảnh quan và tầm nhìn mở rộng thú vị, nó còn cho phép người sử dụng tiếp cận với thiên nhiên ở những mức độ xa gần khác nhau, và luôn đảm bảo cho công trình thông thoáng, tràn ngập ánh sáng.

Một nhà hàng với diện tích sử dụng không lớn nhưng đầy đủ, trọn vẹn với nhiều công năng thiên nhiên bổ trợ. Ngoài tính thẩm mỹ đẹp, hiện đại, giầu cá tính, nó còn mang đến những giá trị về môi trường khi tạo ra khoảng không xanh cho mình và cũng cho chính đô thị. Đây cũng là giải pháp để tránh việc xây dựng dầy đặc của thành phố. Sự thành công của công trình phải kể đến sự tham gia rất tâm huyết và kết hợp chặt chẽ của nhiều bên, giữa các đơn vị tư vấn kiến trúc; tư vấn kỹ thuật; thiết kế thương hiệu; cùng các đơn vị thi công.., và tất nhiên với ý thức của chủ đầu tư luôn hướng đến những giá trị đích thực !

.

Density has always been a strong characteristic in the urban design of Hanoi. Historically horizontal concentration has been typical and more recently vertical construction has intensified the capital. Going against the trend of compressing building density, the Organic Café plays with architectural contrasts to propose a resilient microcosm within the urban context.

The site, in a particularly compact area of Northern Hanoi, is composed of two lots; an existing seven storey tube house and a low-rise steel structure. The project draws its design references from traditional shophouse typologies that provided natural ventilation and lighting across a horizontal organisation, their density broken up by intermittently distributed open plazas.

These design principles are reinterpreted by G8A and VUUV’s use of vertical voids allowing for natural ventilation, lighting and comfortable social and commercial spaces. A light metallic structure is used to extend the surface area and maintain the feeling of transparency. The game of spatial and material dissimilarities between “full” and “void” promotes the idea of a self-sustainable system in a saturated environment.

CLIENT

Private

Location

Hanoi, Vietnam

Year

2019

Status

Completed

Program

Hospitality

TEAM

Collaborators