LK12 house

(English below)

LK12 house là một căn nhà ống liền kề quen thuộc, nằm trong khu đô thị mới Nam Trung Yên, Hà Nội. Ngôi nhà đã được xây thô theo dự án và một gia đình năm người dự định sẽ đến sinh sống ở đây. Yêu cầu đối với chúng tôi là ngoài những không gian sinh hoạt chung, ngôi nhà phải có năm phòng ngủ riêng biệt, đầy đủ tiện nghi cho cả bố, mẹ và ba người con. Điều đặc biệt là mỗi thành viên đều muốn sống trong thế giới của riêng mình, nhưng đồng thời họ không muốn đánh mất đi sự kết nối của một tổ ấm.

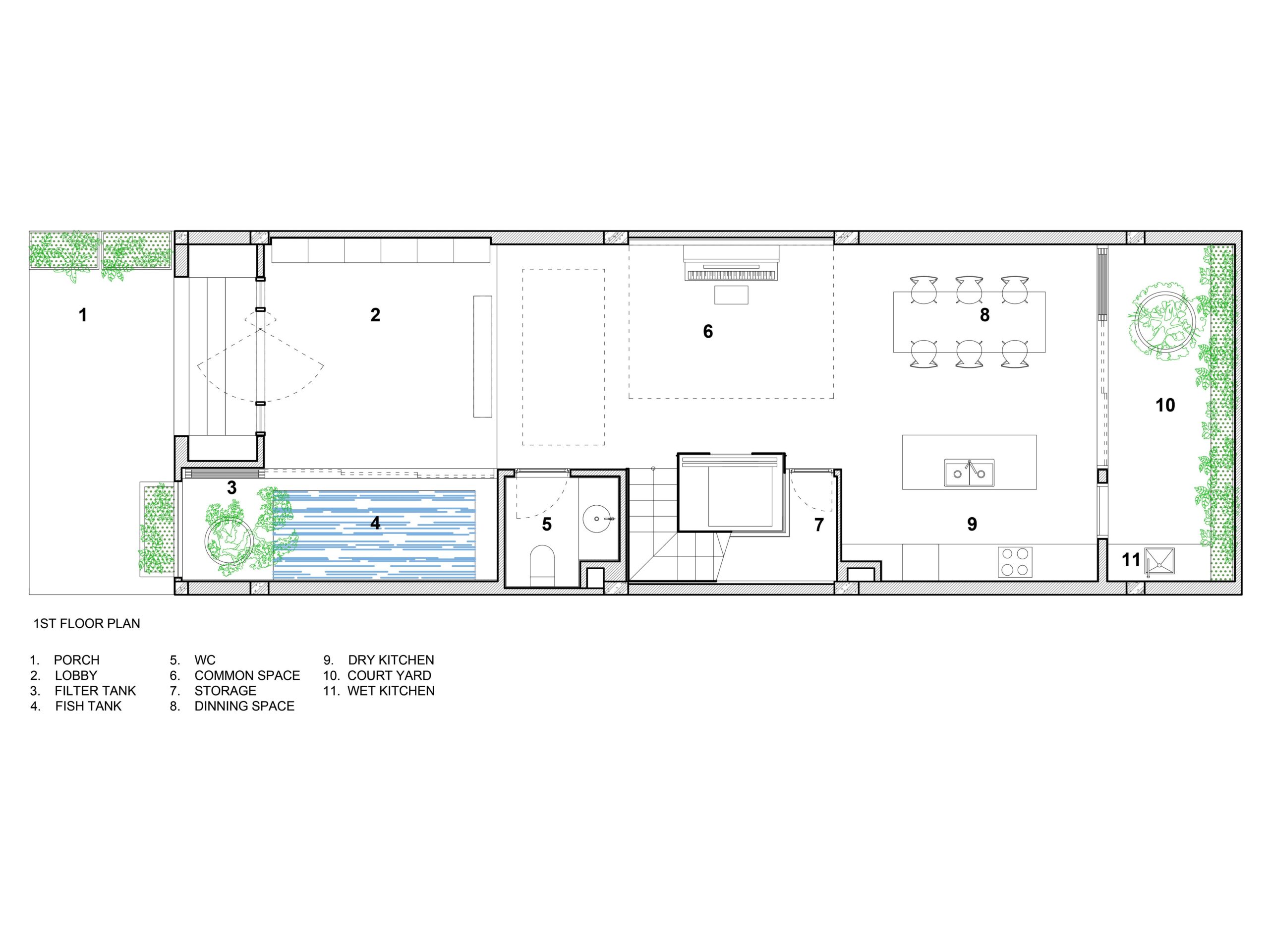
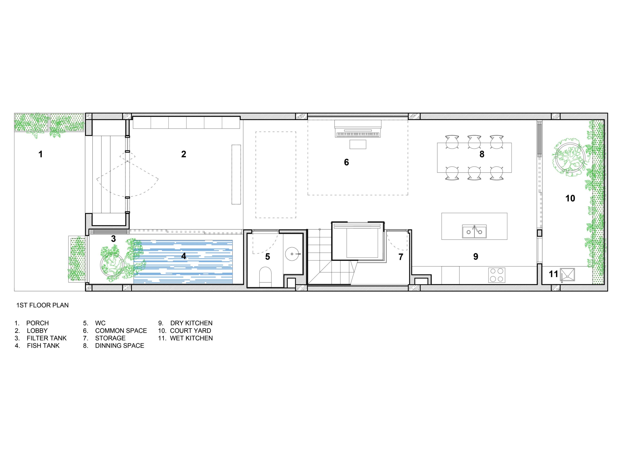
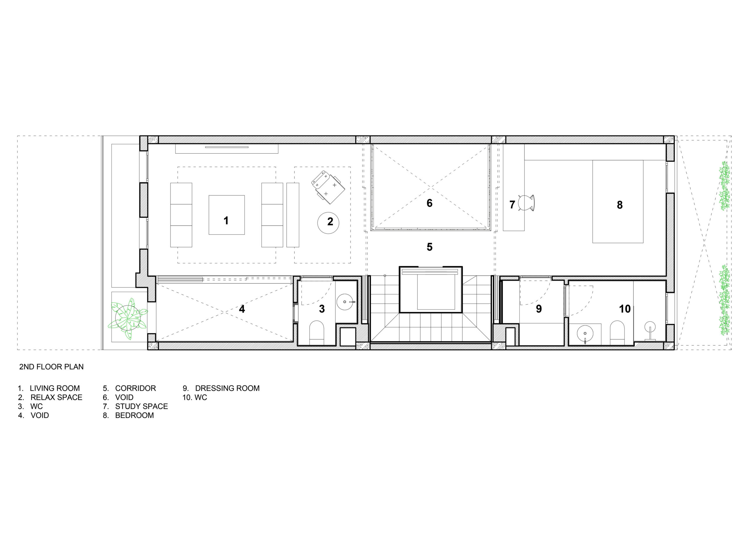
Chúng tôi cấu trúc lại không gian của ngôi nhà và phân định hai tuyến không gian phát triển theo chiều dài nhà: phần thứ nhất bao gồm các không gian phụ trợ như: thang bộ, thang máy, phòng thay đồ và vệ sinh; phần thứ hai là các không gian chính: phòng khách, bếp ăn và các phòng ngủ. Ba khoảng thông tầng được sắp xếp một cách khéo léo, mang đến ánh sáng và thông gió tự nhiên vào tất cả các không gian trong nhà. Tầng một được mở rộng hoàn toàn, nơi gia đình chia sẻ không gian bếp và ăn, cùng với những khoảng trống dành cho các bạn nhỏ chạy nhảy, vui chơi. Từ tầng hai trở lên, các không gian được phân định riêng biệt, theo các công năng cụ thể. Năm phòng ngủ được xếp đặt tại đây và nằm về hai phía của ngôi nhà. Mỗi phòng được tổ chức độc lập với chức năng phức hợp như không gian ngủ, không gian làm việc – học tập, phòng thay đồ, phòng vệ sinh và giếng trời. Trong khi hai không gian giếng trời tại hai đầu nhà có chức năng thông thoáng và tạo điểm nhìn thú vị, thì không gian giếng trời ở giữa còn mang nhiệm vụ kết nối. Sự kết nối giữa các thành viên từ các phòng ngủ thông qua khoảng không này theo cả phương ngang lẫn phương đứng. Sự tương tác sẽ tùy cấp độ ít hay nhiều theo mong muốn của người sử dụng, thông qua một hệ thống ba lớp: “rèm – cửa kính trượt – hệ nan thép”. Đây là sự tổ hợp của ba phần tử kiến trúc tinh tế và linh hoạt mà chúng tôi đã thay thế cho những bức tường ngăn chia thường gặp. Cũng chính nhờ hệ thống ba lớp này mà các không gian trong nhà đa dạng và thú vị hơn.

Vật liệu và màu sắc trong công trình cũng được tính toán theo ý đồ tổng thể chung về cấu trúc không gian. Một mặt, nó tạo nên cá tính riêng cho nội thất ngôi nhà, mặt khác chúng tạo nên sự đa dạng cảm xúc cho người sử dụng.

Hầu hết các đồ nội thất được chúng tôi thiết kế. Đặc biệt đồ nội thất của các buồng ngủ được tính toán để phù hợp với từng thành viên. Chính chúng cấu trúc nên các “tiểu” không gian thích ứng với từng chức năng sử dụng. Đây là một tổ hợp liên hoàn các đồ vật được bố cục với nhau, vừa tiện dụng về mặt công năng, vừa mang tính thẩm mỹ cao, đồng thời tối ưu về mặt diện tích. Bố cục của các chức năng sử dụng cũng được thiết kế một cách khéo léo để thích ứng cho sự kết nối hay riêng tư.

Với một xã hội Việt Nam ngày càng hiện đại hơn, việc tổ chức không gian sống trong một ngôi nhà nơi – “Đâu là ranh giới giữa riêng tư và kết nối?” – sẽ là một trong những câu hỏi trọng tâm của thiết kế!

.

LK12 house is a common townhouse, located in Nam Trung Yen new urban area, Hanoi. The house has been constructed by the project owner and a family of five is planning to move in. The requirement for us to solve is that in addition to the common living spaces, the house must have five separate bedrooms, fully equipped for both parents and three children. Specifically, each member wants to live in their own world, but at the same time they don’t want to lose their connection to each other in the home.

We restructured the space of the house and demarcated two spaces along the length of the house: the first part includes servant spaces such as stairs, elevators, changing rooms and toilets; The second part is the served space: living room, kitchen and bedrooms. The three atriums are subtly arranged, bringing natural light and ventilation into all indoor spaces. The first floor is completely expanded, where the family shares the kitchen and dining space, along with empty spaces for the little ones to run and play.

From the second floor upwards, the spaces are demarcated separately, according to specific functions. Five bedrooms are located on either side of the house. Each room is designed independently with a complex function such as a sleeping space, a work-study space, a dressing room, a restroom and an open access to the atrium. While the two atriums at both ends of the house have the function of ventilation and create an interesting point of view, the central atrium is a connecting space. All family members are connected both horizontally and vertically from their own bedrooms through this space.

The extent of interaction will be subject to how users want it through a three-layer system: “curtains – sliding glass doors – steel mesh”. This is a combination of three sophisticated and flexible architectural elements that we have used to replace the usual dividing walls which makes the indoor spaces more diverse and interesting. Materials and colors in the building are also studied according to the overall plan of space structure. On the one hand, it creates an unique personality for the interior of the house, on the other hand, it brings various emotions for users.

Most of the furniture is designed by us. Especially the furniture of the bedrooms is studied to fit each member. It is the furniture that contributes to creating “sub” spaces that are adapted to each function. This is a continuous combination of objects arranged together, which solves a problem of functionality, aesthetics, and optimizing the usable area. The composition of these furniture is also cleverly designed to accommodate connectivity or privacy.

With an increasingly modern Vietnamese society, the arrangement of living spaces in a house to address – “Where is the line between privacy and connection?” – will be one of the central questions of the design!

CLIENT

Private

Location

Cau Giay, Hanoi, Vietnam

Year

2021

Status

Completed

Program

Residence

TEAM

Collaborators