Jasmine house

(English below)

Jasmine house nằm trong một con ngõ nhỏ trên phố Đội Cấn, quận Ba Đình, Hà Nội, khu vực đang dần trở thành nơi cư trú của một bộ phận không nhỏ những người nước ngoài sinh sống và làm việc tại Việt Nam. Điều này đang tạo nên một sự thay đổi lớn về diện mạo và tính chất các công trình kiến trúc nhà ở nơi đây, với những căn hộ cho thuê đang trở nên rất thịnh hành.

Những thách thức được chúng tôi đặt ra trước khi thiết kế công trình. Thứ nhất, đâu là lối sống mới cho loại hình căn hộ cho thuê, đặc biệt tại khu vực này? Thứ hai, kiến trúc phải được thiết kế hiệu quả và sáng tạo đột phá để trở thành yếu tố quan trọng trong kinh doanh của chủ đầu tư. Với Jasmine house, chúng tôi mong muốn tạo ra một môi trường tích cực chung cho cộng đồng mọi người sống trong ngôi nhà, mọi người hoàn toàn tự do lựa chọn cơ hội tương tác hay tìm cho mình thế giới riêng.

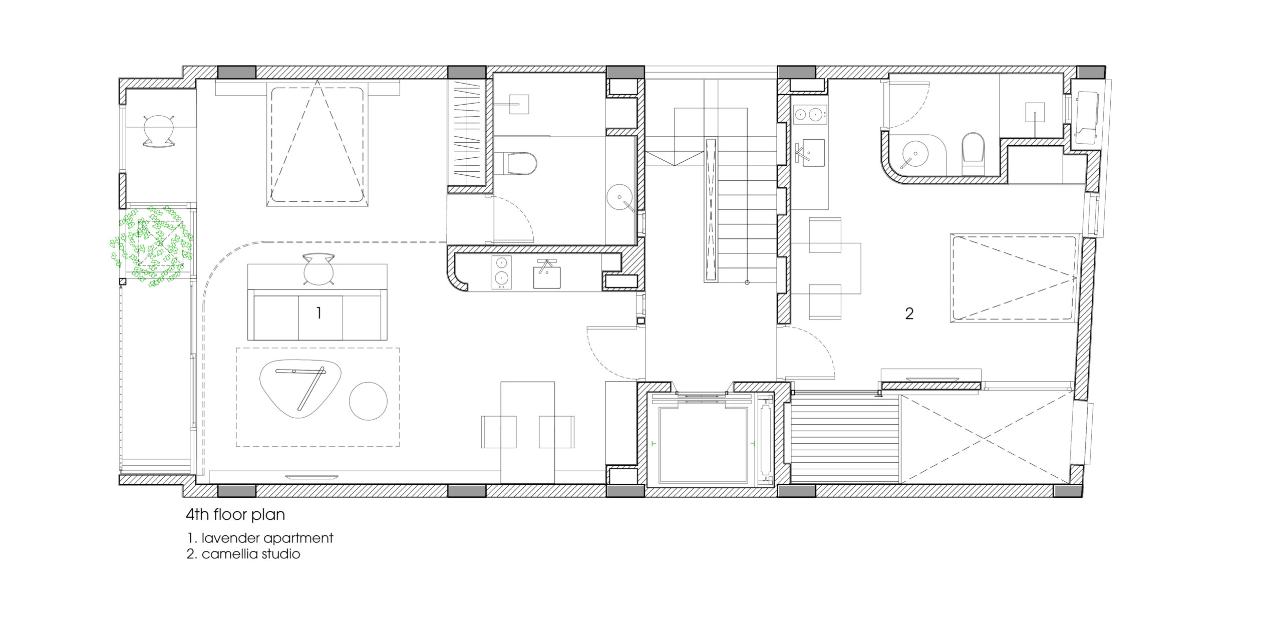
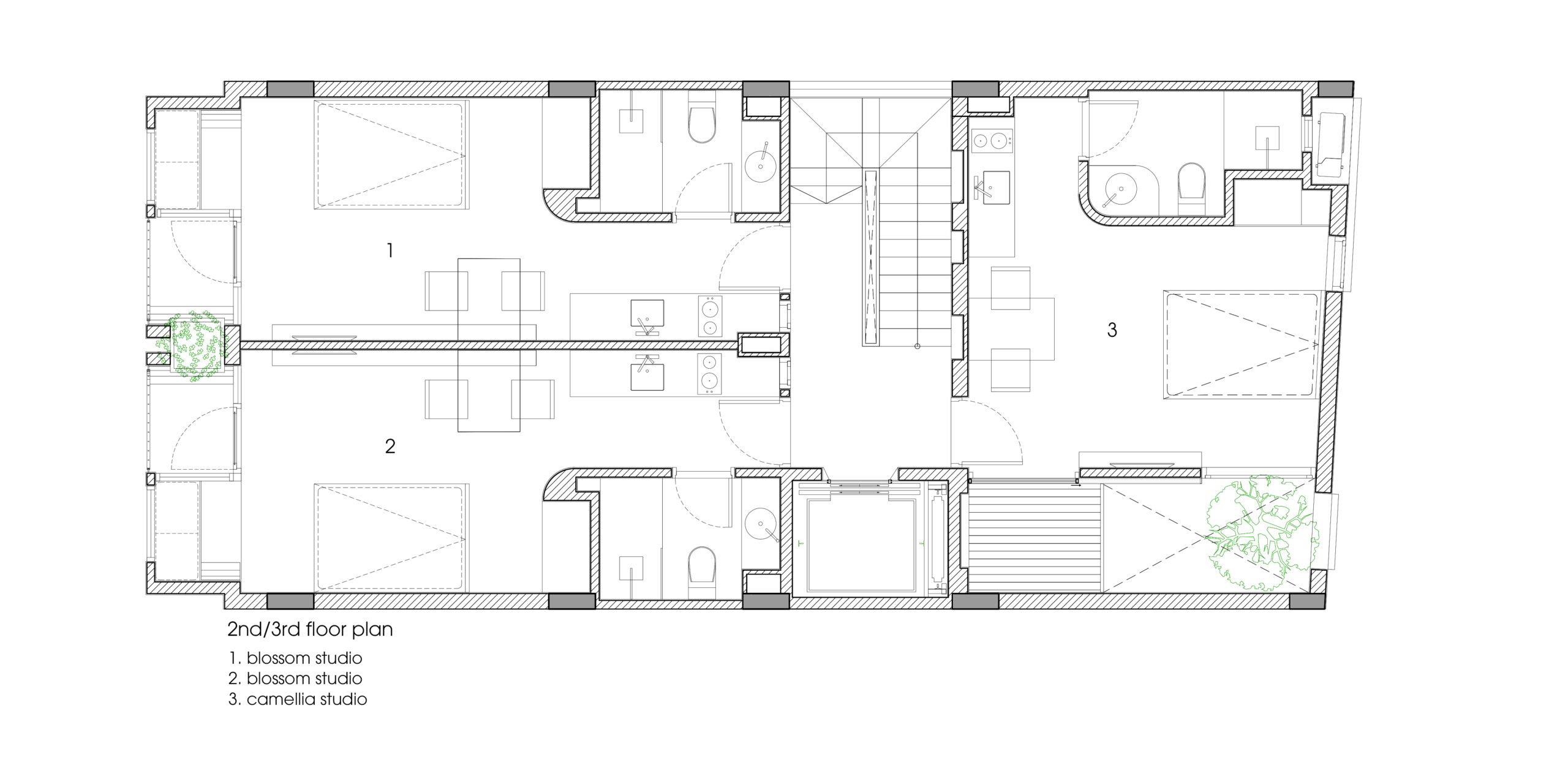
Không gian sinh hoạt chung tầng một với chiều cao 6,5m, kết nối với khoảng vườn sân trong và liên thông với tầng lửng. Tầng lửng là một không gian linh hoạt đa năng – nơi người trong toà nhà có thể tổ chức triển lãm, mở các lớp học kỹ năng hay những buổi nói chuyện chuyên đề… Phần phía trên, từ tầng 2 đến tầng 7 là các không gian căn hộ khép kín. Mỗi căn hộ dù lớn hay nhỏ đều được thiết kế đầy đủ tiện nghi, tràn ngập ánh sáng và thông thoáng tự nhiên, gồm cả những không gian cơ bản và thêm khoảng ban công đặc biệt. Phần ban công này được chúng tôi tổ hợp giữa không gian trong và ngoài nhà, nơi vừa là không gian nghỉ ngơi thư giãn, cũng là không gian đọc sách, không gian cây xanh…

Đối với các căn hộ phía đằng trước, ban công là các phần không gian mở rộng ra ngoài nhà, thì với các căn hộ đằng sau, ban công được thiết kế “lơ lửng” trong khoảng không gian vườn thông tầng của tòa nhà, những người sống tại các căn hộ liền kề có thể liên hệ với nhau qua những tán cây xanh. Về mặt khí hậu, những chiếc ban công này giống như một lớp không gian đệm, bảo vệ không gian chính trong căn hộ khỏi tác động trực tiếp của ánh nắng hướng Tây. Các nét cong được nghiên cứu trong nội thất cũng được biểu hiện ngoài mặt tiền, tạo nên một ngôn ngữ đặc trưng cho công trình.

Về phần đồ nội thất trong công trình, chúng tôi đã thiết kế để khai thác sự khéo léo của thợ thủ công Việt Nam từ những vật liệu cơ bản như: granito, sắt, gỗ… Nội thất từng căn hộ có cá tính riêng, các chi tiết đồ nội thất đa dạng nhưng lại có chi phí đầu tư hợp lý.

Sự hoài niệm về một làng hoa truyền thống của Hà Nội được chúng tôi đưa vào công trình một cách tinh tế. Những khoảng cây xanh được tạo ra một cách tối đa, xuyên suốt công trình. Từ hàng hiên lối vào nhà đến khoảng vườn sân trong, từ ban công các căn hộ đến khu vườn trên mái…và ngay cả màu sắc hay tên của từng căn hộ cũng là những sự trân trọng của chúng tôi dành cho mảnh đất lịch sử này!

.

Jasmine house is located in a small lane in Ba Dinh District, Hanoi, once belonged to Ngoc Ha Flower Village. Like many other areas around the inner city, there has been a strong urbanization process here. Yet thanks to its own unique feature of being located near the city center and diplomatic headquarters, the area gradually became a residential area of foreign community living and working in Vietnam. This has been creating a big change to the appearance and nature of buildings here. There are not only small houses for households, but also alternating larger buildings to welcome newcomers. That is why buildings with apartments for rent have been very prevalent here.

That fact has posed challenges for us when taking this project. First, what is the new way of living in this type of apartment-for-rent, especially in this area? Secondly, architectural design must be effective and truly out-of-the-box as it will play an important role in promoting the investor’s business among too many apartments for rent..

With coherent structure, we organize different layers of space, from public spaces, semi-public spaces and private spaces. The base of the building includes the first floor and mezzanine designed for community space. From the 2nd to 7th floor there are different types of apartment. On the second and third floors there are small-sized studios. On the 4th floor there is a big-sized studio and on the 5th, 6th and 7th floors are duplex. Diversifying the types of apartments helps guests to easily choose for themselves the most suitable space. Each apartment is designed with full amenities, light and natural ventilation.

In addition to the basic spaces such as kitchen, dining, living room, bedroom and restroom, each apartment is also designed with a balcony. The balcony is a combination of inside and outside space; it can be a relaxing space or reading space. If the balcony of apartments in the front of the house are designed as expanding spaces, the balcony of apartment at the back are designed to be floating in the skylight of the building. These are also the “semi-public” spaces – designed separately for each apartment but people living in adjacent apartments can still make contact with each other. These balconies also serve as buffering layers, protecting the main space in the apartment from the direct impact of sunlight from the West.

As for the furniture inside the building, we have designed to exploit the skillfulness of Vietnamese craftsmen from basic materials such as granite, iron, wood … The curves studied in the interior are also expressed outside the façade, creating a distinctive language throughout the project.

The nostalgia for a traditional flower village of Hanoi is subtly put into our works. Green spaces are maximized throughout the building, from the entrance porch to the interior courtyard, from the balcony of the apartments to the rooftop garden … and even the color or the name of each apartment reflects our nostalgia for the historic land!

CLIENT

Private

Location

Hanoi, Vietnam

Year

2019

Status

Completed

Program

Residence

TEAM

Collaborators