Frame house

Frame house là một dự án trong năm 2017 của chúng tôi về cải tạo một biệt thự liền kề tại khu đô thị Ciputra, Hà Nội. Theo thiết kế ban đầu, không gian bên trong biệt thự bị chia nhỏ và rời rạc. Bên cạnh đó, những lợi thế về không gian cảnh quan của ngôi nhà cũng chưa được khai thác sử dụng một cách hiệu quả.

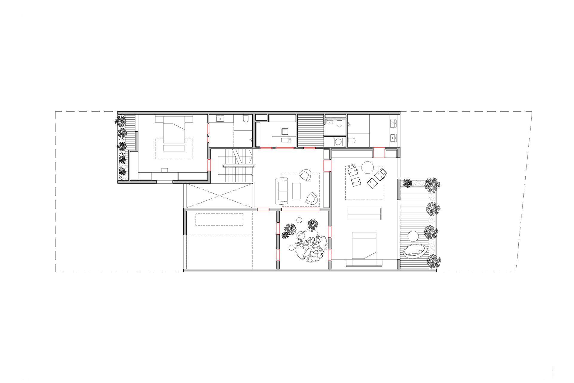
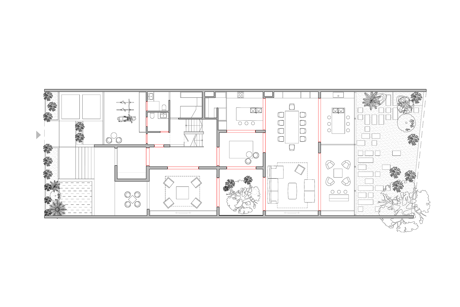
Vì vậy, giải pháp của chúng tôi là cấu trúc lại các không gian bên trong biệt thự với mục tiêu là định hình rõ nét từng không gian và tạo ra nhiều mối liên hệ hơn nữa giữa chúng với nhau. Chúng tôi tạo ra các ô cửa có vai trò nổi bật khi chúng đồng thời vừa là phần tử phân định, vừa liên kết không gian.

Mỗi khung cửa, nơi gặp gỡ của hai không gian, định hướng điểm nhìn từ hai phía. Khung cửa trở thành sự xác nhận về “không gian tồn tại”, bởi nó mang tính chất định vị, định hướng, nhận diện cho không gian bên trong nó. Càng nhiều khung cửa được sắp đặt, không gian được tạo ra càng trở nên đa chiều, đa nghĩa. Nói cách khác, tổ hợp của những ô cửa đã lập thể hóa không gian trong ngôi nhà, dẫn tới các điểm nhìn trở nên linh hoạt hơn, thú vị hơn, tạo cảm giác thoáng đãng không giới hạn.

Tiếp đó, chúng tôi cũng muốn khai thác triệt để hơn khả năng đưa các không gian xanh vào ngôi nhà, tăng cường mối liên hệ giữa con người với thiên nhiên. Những không gian thiên nhiên đa dạng như: vườn trước, vườn sau, vườn trong nhà, vườn treo, chậu cây ở ban công được đặt kết hợp với từng không gian sinh hoạt để thiên nhiên bất ngờ xuất hiện, mang lại những trải nghiệm khác nhau trên hành trình di chuyển trong ngôi nhà.

Như vậy ở đây, thiên nhiên không còn là thành tố chỉ mang tính bổ trợ cho công trình mà hơn thế, đã trở thành một “không gian công năng” thực sự, được phân định rõ ràng và có vị trí tương xứng để cấu thành tổng thể không gian của toàn căn nhà. Hơn nữa, những vườn đứng trên các mặt ngoài của công trình còn đóng vai trò là lớp vỏ bọc bên ngoài cho công trình. Và cùng với vườn trước và vườn sau, sẽ đóng góp vào cảnh quan thiên nhiên chung của khu đô thị.

CLIENT

Private

Location

Ciputra, Hanoi, Vietnam

Year

2017

Status

Completed

Program

Residence

TEAM

Collaborators