FPT software office

(English below)

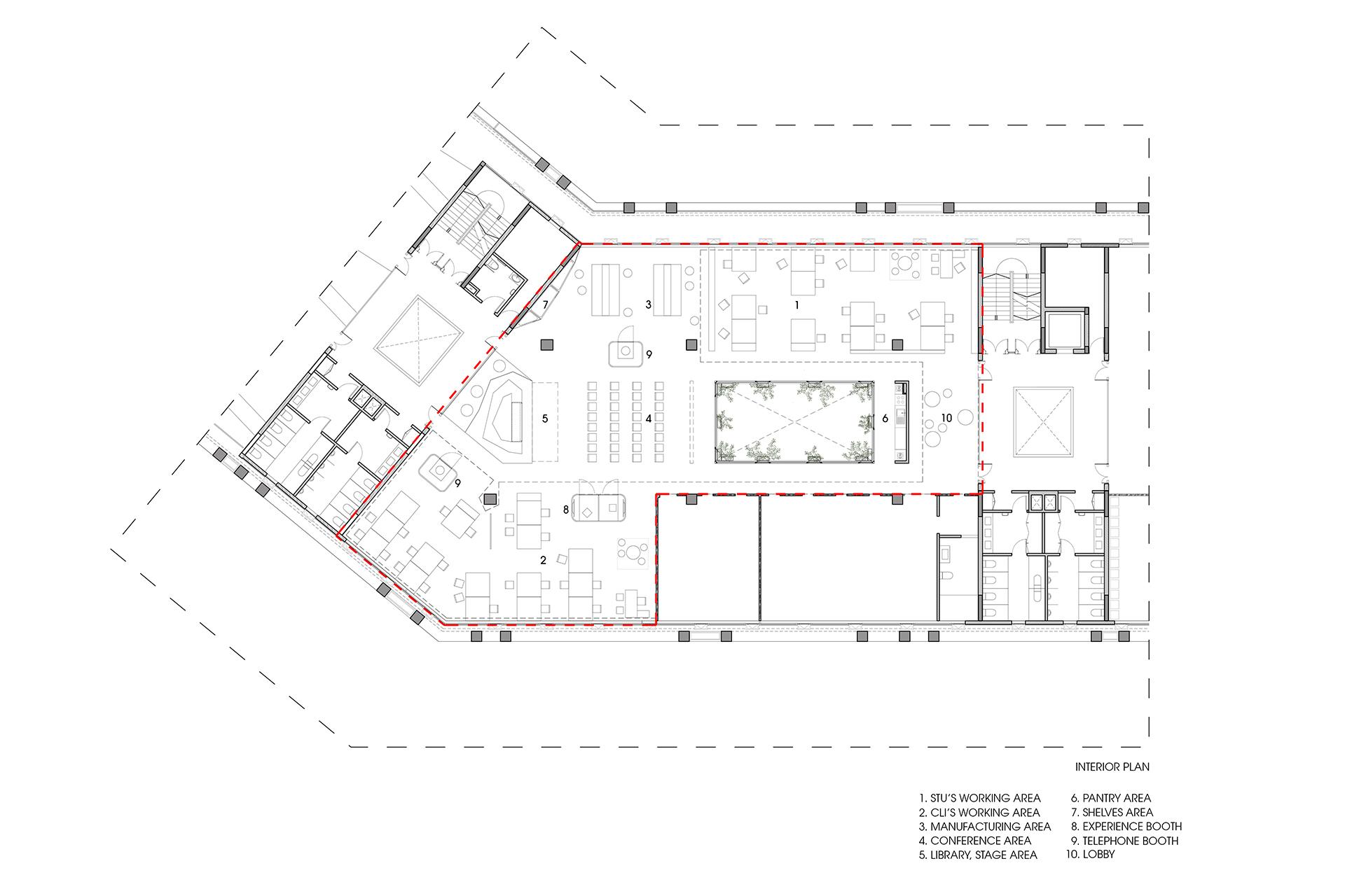
“Không gian làm việc của STU và CLI” là không gian đặc trưng dành cho các kỹ sư tin học của Công ty Phần mềm FPT software, tại Khu công nghệ cao Hoà Lạc. Ở đây bao gồm các công năng: hai khu làm việc dành cho 50 người, khu sản xuất, khu hội thảo và trình diễn, thư viện, khu giải trí, các booth họp và điện thoại.

Do đặc thù của công việc đòi hỏi sự hợp tác cao theo nhóm, chúng tôi xác định đây cần phải là một không gian mở duy nhất, tuy nhiên mỗi chức năng vẫn cần phải được xác định một cách rõ rệt. Ngoài ra, đây là một không gian làm việc đặc trưng của công ty, nên việc tìm ra một cá tính riêng biệt rất cần thiết.

Để giải quyết bài toán nêu trên, chúng tôi tạo ra một hệ mái được đan bằng nan tre. Phần tử kiến trúc này sẽ phân định không gian làm việc với không gian mang chức năng công cộng. Thực ra hệ mái nan tre này còn có nhiều công năng khác. Nó vừa xác định rõ hơn không gian làm việc bên dưới, vừa như một tấm trần giả che đi các hệ thống kỹ thuật bên trên. Ngoài ra, việc được làm bởi các nan tre, nó sẽ có tác dụng như những tấm tiêu âm nhưng vẫn để khí điều hòa, thông gió chạy xuyên qua. Hơn nữa, hệ mái này còn tham gia vào việc tạo ra các hiệu ứng chiếu sáng khi nó trở thành một chiếc đèn lồng khổng lồ. Hiệu ứng chiếu sáng này, một mặt làm không gian làm việc trở nên năng động hơn, mặt khác tạo cảm giác đang có một không gian mở rộng ở phía trên, thay vì bị giới hạn bởi phần trần giả rất thấp và buồn tẻ như những không gian làm việc thông thường khác.

Ngoài hệ mái ra thì từng đồ nội thất lớn nhỏ đều được chúng tôi thiết kế. Chúng vừa đảm nhận chức năng riêng, nhưng cũng là những phần tử phân chia không gian. Chúng là tủ trưng bày, tủ cá nhân, tủ thư viện, các các booth điện thoại, và ngay cả những chiếc bàn làm việc.

Với vật liệu tre, chúng tôi tìm tới vật liệu tự nhiên được sử dụng phổ biến trong nghệ thuật đan lát của những làng nghề thủ công mỹ nghệ truyền thống vùng Bắc Bộ. Nhưng ở đây, nghệ thuật đan lát này được nhìn nhận theo cách khác với một tỷ lệ lớn hơn dành cho kiến trúc. Đây cũng là cách để đưa các yếu tố nội thất cùng với cảnh quan của tòa nhà tạo ra một tổng thể thiên nhiên hài hòa. Điều đó rất cần thiết cho người sử dụng, với đặc thù công việc rất tập trung và gắn liền với nền công nghệ cao của thế giới số !

Hình thái của hệ mái nan tre trở thành biểu tượng riêng của người sử dụng. Họ ví nó như đám mây khi so sánh với chiến lược phát triển sản phẩm phần mềm trên nền tảng điện toán đám mây của Fsoft. Hay như một dạng mạng lưới kết nối khổng lồ của Internet… Hãy để người sử dụng tự do tưởng tượng!.
“STU and CLI workspace” is a typical space for IT engineers of FPT Software, located in the Concrete Lace building at Hoa Lac Hi-Tech Park. It includes the following functions: two main working areas for 50 people, production area, seminar and performance area, library, entertainment area, meeting and telephone booths.

Because the job requires a high level of teamwork, we determined that this would need to be a unique open space, but each function still needs to be clearly defined. In addition, this is a company-specific workspace, so it is necessary to find a corporate unique identity.

To solve the above problem, we create a roof system made of bamboo. This architectural element will delineate the workspace with the public functional space. In fact, this bamboo roof system has many other uses. It has more clearly defined the workspace below, and also serves as a false ceiling covering the above technical systems. In addition, it will work as the sound absorption plate but in the meantime still let air conditioning and ventilation run through. Moreover, this roof system is also involved in creating lighting effects when it becomes a giant lantern. On the one hand, this lighting effect makes the workspace more dynamic, on the other hand it feels like there is an open space above, instead of being limited by a very low and dull ceiling like other common workspaces.

In addition to the roof system, each large and small furniture is designed by us. They both perform their own functions, and are also spatial divisions. They are display cabinets, personal cabinets, library cabinets, phone booths, and even desks.

With bamboo materials, we look to natural materials commonly used in wickerwork of traditional handicraft villages in the North of Vietnam. But here, this wicker art is seen differently in a larger proportion for architecture. This is also a way to bring the interior elements together with the building’s landscape to create a harmonious natural context. It is very necessary for users to gain balance, especially when their work is very focused and tied to the high technology of the digital world!

The morphology of the bamboo roof system becomes the users’ own symbol. They regard it as “the cloud” when compared to Fsoft’s cloud computing software development strategy, or as a giant connecting form like Internet … Let users freely imagine!

 

CLIENT

FPT Software

Location

Hoa Lac Hi-tech Park, Hanoi, Vietnam

Year

2017

Status

Completed

Program

Office

TEAM

Collaborators