Blue wave

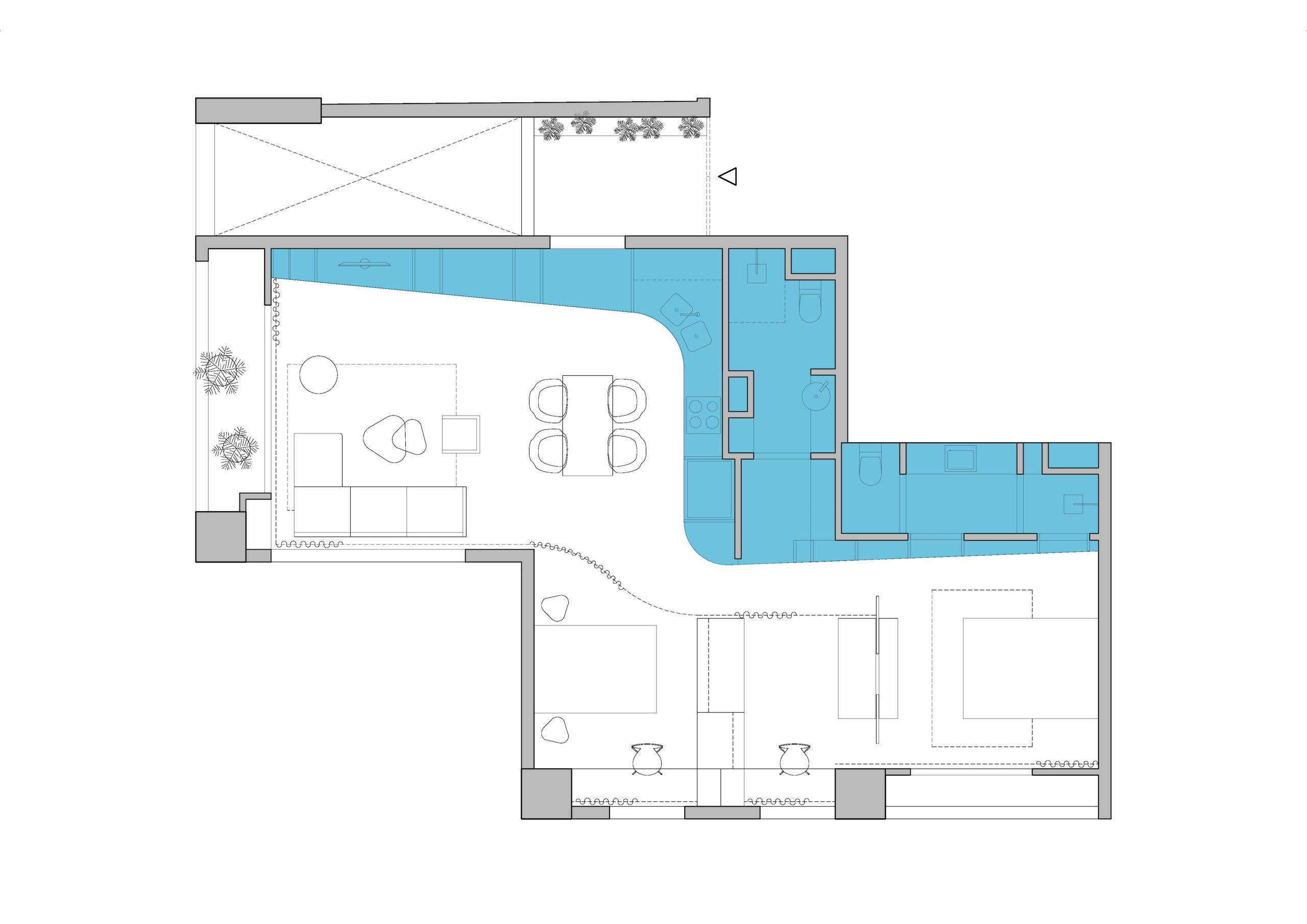
Blue wave là dự án tiếp theo của chúng tôi trong chuỗi nghiên cứu “Đồ nội thất kiến tạo không gian”. Căn hộ nằm trong toà nhà có vị trí tại ngã tư và có cửa sổ nhìn ra cả hai tuyến phố. Theo thiết kế ban đầu, căn hộ có 3 phòng ngủ nhỏ và 2 khối kỹ thuật tách biệt nhau. Do căn hộ bị chia nhỏ đã làm giảm đi đáng kể sự thông thoáng và sự tự do liên kết giữa các không gian. Ngoài ra, những đường nét thẳng, hình khối vuông vức đã làm cho căn hộ càng trở nên khô cứng, thậm chí ngột ngạt như tình trạng của đô thị Hà Nội. Những hạn chế nói trên cho căn hộ được chúng tôi giải quyết bằng một “hệ đồ vật”. Trước hết, đó là sự sắp xếp lại các không gian phụ trợ về một phía để mở rộng tối đa không gian sử dụng chính, cũng như tăng tính kết nối của không gian bên trong căn hộ với thiên nhiên bên ngoài, đặc biệt là không gian sinh hoạt chung (phòng khách, phòng bếp và ăn) với những cửa sổ mở ra cả hai tuyến phố. Sau đó, về mặt hình khối, hệ đồ vật được thiết kế để trở thành phần tử nổi bật trong căn hộ. Nó chạy xuyên suốt căn hộ và biến đổi theo từng không gian mà nó đi qua nhưng không mất đi sự thống nhất của nó. Điều này giúp liên kết các không gian với nhau một cách tự nhiên nhất. Sự liên kết này sẽ tác động rất lớn đến việc tương tác hàng ngày giữa các thành viên trong gia đình. Lấy cảm hứng từ những con sóng trên đại dương mà chủ nhà yêu thích, đường cong và màu sắc của “hệ đồ vật” này làm cho cảm giác không gian trong căn hộ có sự biến đổi liên tục ở các vị trí khác nhau. Nó đang giãn nở, mở rộng ra vô tận!

CLIENT

Private

Location

Thanh Xuan, Hanoi, Vietnam

Year

2016

Status

Completed

Program

Residence

TEAM

Collaborators